服務熱線:
13847103454
首頁 > 新聞動態 > 行業新聞
行業新聞
冷庫地坪雖然鋪設了與庫溫相適應的隔熱層,但它并不能完全隔絕熱量的傳遞,只能降低其傳遞的速度。當冷庫降溫后,庫溫與地坪下土層之間產生較大的溫差,土層中的熱量就會緩慢的通過隔熱層和冷橋傳至庫內,也可以說冷量由庫內傳至土層,使土層溫度降低。
低溫庫的溫度常年在0℃以下,若地坪下土層得不到熱量的補充,將使0℃等溫線逐漸移至土層中,使土層的水分受凍成冰。由于溫差的存在及冰晶的形成,土壤上下層之間產生的水蒸氣分壓力差,使下層土壤中的水蒸氣不斷向上層移動,導致冰凍體逐漸擴大。隨著時間的推移,0℃等溫線不斷的向土層深入,土層中的凍冰體也不斷的加大水分結冰產生的體積膨脹力最終將引起地坪凍臌或地基凍脹現象,危機建筑結構安全。因此,低溫冷庫的地坪除了設置隔熱層、隔氣防潮層之外,還要采取地坪防凍措施,使地坪下的土層保持在0℃以上。

冷庫地坪防凍膨的常用方法
地坪架空防凍:將冷庫地坪架空,在架空板上做隔熱層,使從地坪散發出來的冷量,能通過架空層的空氣散發掉,不再引起地面下的土壤凍臌。

地坪通風防凍:在冷庫地坪中埋設通風管進行自然或機械通風,地坪傳出的冷量由通風管中流動的空氣散發,稱為通風防凍。

地壟墻半架空防凍:用磚墻或混凝土地壟墻將冷庫地坪架空,在地壟墻間進行通風。設置地壟墻半架空時,要注意排水設施通暢。

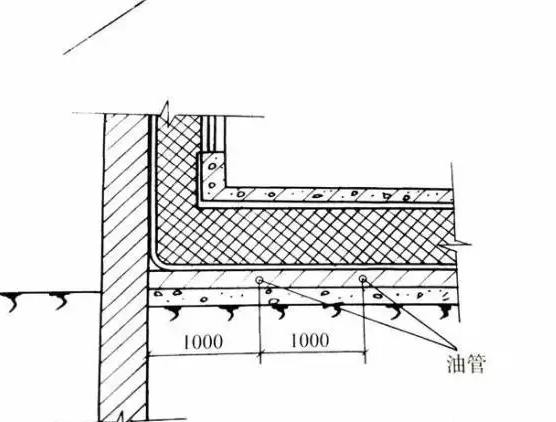
地坪油管防凍:在冷庫地坪中埋設油管,用熱油在管內循環,以吸收地坪傳出的冷量,起到防凍的作用。

油管防凍實景圖
地坪電加熱防凍:在地坪隔熱層下的混凝土墊層內埋設電熱鋼絲網加熱。

冷藏庫是食品冷卻、凍結、冷藏的場所,它能為食品提供必要的庫內溫度、濕度條件。合理的冷庫結構、良好的隔熱、防潮性能和地坪強度,是冷庫長久使用的重要條件,
必須引起足夠的重視。